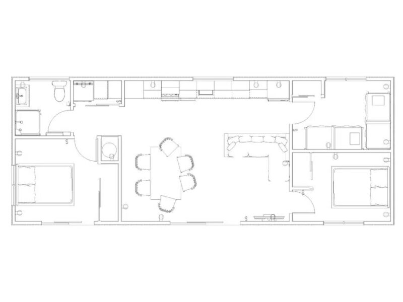
Foxton 65
Available in:
Auckland, Bay of Plenty, Canterbury, Gisborne, Hawke's Bay, Manawatu, Marlborough, Nelson Bays, Northland, Southland, Taranaki, Timaru - Oamaru, Waikato, Wairarapa, Wellington, West Coast, Whanganui
Auckland, Bay of Plenty, Canterbury, Gisborne, Hawke's Bay, Manawatu, Marlborough, Nelson Bays, Northland, Southland, Taranaki, Timaru - Oamaru, Waikato, Wairarapa, Wellington, West Coast, Whanganui
13 x 5
A popular 3-bedroom design, ideal as a family home or bach. It features plenty of windows and ranch sliders for natural light, with a spacious lounge and dining area. Fully self-contained and easily transportable for flexibility.
From $225,500*
*incl. GST. Valid for Aug 1 – Oct 31 2025. T’s and C’s Apply.

