The Everest XL
Auckland, Bay of Plenty, Canterbury, Gisborne, Hawke's Bay, Manawatu, Marlborough, Nelson Bays, Northland, Southland, Taranaki, Timaru - Oamaru, Waikato, Wairarapa, Wellington, West Coast, Whanganui
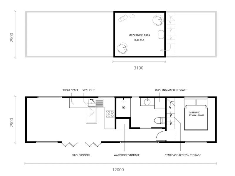
The Everest XL Tiny Home is the ultimate retreat space, and is perfect for a home or Airbnb. The main selling point of the Everest XL is the generous downstairs living and bathroom area. The upstairs mezzanine level boasts a roomy space for guest accomodation or a retreat nook.
The functional L shaped kitchen is flooded with natural light from the skylight above. There is space for a full-size fridge and plenty of storage under the bench tops either side of the house. The lounge area boasts space for a couch and small table and chairs.
The Everest XL is 12m long, 2.9m wide. It can be moved to site with a low loader truck.
As with all our Tiny Home designs, we have never made the same model twice, as our clients add, change and modify the layout they like the best to create their perfect dream Tiny Home.

